サニータウン千葉市中央区東本町

販売価格 3,998万円4,598万円
所在地 千葉市中央区東本町 Googleマップを開く
沿線情報
京成千葉線 「千葉中央」駅 徒歩15
JR総武本線 「東千葉」駅 徒歩16
JR総武本線 「千葉」駅 徒歩21
千葉都市モノレール 「葭川公園」駅 徒歩13
土地面積 86.30m2(26.1坪)90.00m2(27.22坪)
建物面積 100.60m2(30.43坪)101.84m2(30.8坪)
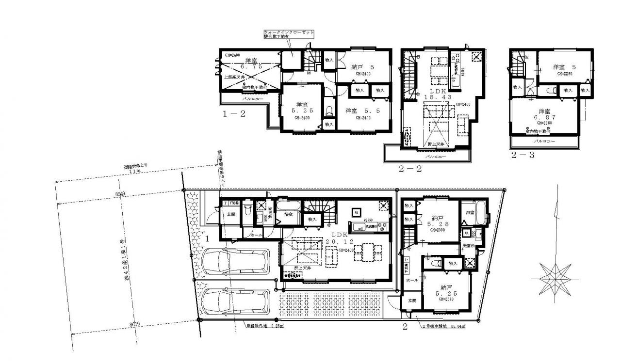
間取り 2LDK+2S(納戸)
建物構造 木造 地上3階建て
建物現況 未完成

サニータウン千葉市中央区東本町 ★全2棟のご案内です★

◆最寄り駅
京成千葉線「千葉中央」駅 徒歩15分
JR総武線「東千葉」駅 徒歩16分、「千葉」駅 徒歩21分
千葉都市モノレール1号線「葭川公園」駅 徒歩13分

◆販売価格
1号棟・・・4,598万円(税込)
2号棟・・・3,998万円(税込)

◆設備・仕様
◇セキュリティー
 ・ダブルロック玄関錠&ディンプルキー&鎌デッド錠 ・カラーモニター付きハンズフリーインターフォン ・シャッター付きサッシ窓(手動)
◇キッチン
 ・システムキッチン(浄水器内蔵型シャワー水栓) ・セミジャンボシンク ・ガスコンロ(3口タイプ)・食器洗浄乾燥機 
◇サニタリー
 ・浴室換気乾燥暖房機(浴室乾燥機) ・温水洗浄便座(ウォシュレット) ・三面鏡付き洗面洗髪化粧台(洗面化粧台)
◇居室・収納
 ・24時間換気システム ・ペアガラス ・大型クローゼット 
◇その他仕様
 ・ペアガラス(複層ガラス) ・床下収納 ・太陽光設置(1号棟) ・室内物干設置

他にも生活に便利な設備を多数採用!!!

◆この建物のココがイイ!!
◇建物主要な部位10年保証瑕疵保証 ◇フラット35S対応住宅(1号棟) ◇設計性能評価取得 ◇建築性能評価取得 ◇性能評価書において4~6項目の最高等級取得 ◇耐震最高等級取得(1号棟)

弊社は東京都・千葉県・神奈川県・埼玉県にて新築戸建を販売しております。
まずはお気軽に資料請求・お電話くださいませ♪

物件情報

物件名 サニータウン千葉市中央区東本町
所在地 千葉市中央区東本町 Googleマップを開く 沿線情報
京成千葉線 「千葉中央」駅 徒歩15
JR総武本線 「東千葉」駅 徒歩16
JR総武本線 「千葉」駅 徒歩21
千葉都市モノレール 「葭川公園」駅 徒歩13
価格 3,998万円4,598万円 物件種別 新築戸建
土地面積 86.30m2(26.1坪)90.00m2(27.22坪) 建物面積 100.60m2(30.43坪)101.84m2(30.8坪)
総戸数 2戸 建物構造 木造 地上3階建て
接道状況 西側 8.54m 一方 公道 セットバック 不要
駐車場 車庫区分 カースペース
建物現況 未完成 取引態様 売主
建築確認番号 第HPA-26-00568-1号 情報変更日 2026年2月10日
物件名 サニータウン千葉市中央区東本町
所在地 千葉市中央区東本町 Googleマップを開く
沿線情報
京成千葉線 「千葉中央」駅 徒歩15
JR総武本線 「東千葉」駅 徒歩16
JR総武本線 「千葉」駅 徒歩21
千葉都市モノレール 「葭川公園」駅 徒歩13
価格 3,998万円4,598万円
物件種別 新築戸建
土地面積 86.30m2(26.1坪)90.00m2(27.22坪)
敷地面積 100.60m2(30.43坪)101.84m2(30.8坪)
総戸数 2戸
建物構造 木造 地上3階建て
接道状況 西側 8.54m 一方 公道
セットバック 不要
駐車場
車庫区分 カースペース
建物現況 木造 地上3階建て
取引態様 売主
建築確認番号 第HPA-26-00568-1号
情報変更日 2026年2月10日

土地情報

土地権利 所有権 地目 宅地
都市計画 市街化 用途地域
第1種住居地域
建蔽率 60% 容積率 200%
土地権利 所有権
地目 宅地
都市計画 市街化
用途地域
第1種住居地域
建蔽率 60%
容積率 200%

備考情報

学区
千葉市立 鶴沢小学校 600m
千葉市立 葛城中学校 1600m
特徴・設備
都市ガス / 公営水道 / 汚水:公共下水 / 雑排水:公共下水 / ユニットバス / ユニットバストイレ / ガスコンロ / 冷房 / 東京電力
設計住宅性能評価書 / 建設住宅性能評価書(新築時) / 建築確認完了検査済証 / 耐震構造 / 外壁サイディング / 瑕疵保険(国交省指定)保証付 / フラット35・S適合証明書 / フラット35適合 / 地盤調査済
備考
都市ガス / 公営水道 / 汚水:公共下水 / 雑排水:公共下水 / ユニットバス / ユニットバストイレ / ガスコンロ / 冷房 / 東京電力

物件情報について

地積、建物床面積、仕様に変更が生じる場合があります。
図面と現況が異なる場合には現況を優先します。
物件情報は最新のものをご提供させて頂きますが、万一売約済の場合はご容赦ください。
建築条件付土地は土地売買契約締結後、一定期間内に売主指定の不動産会社もしくは建築業者と建築請負契約を結ぶことが前提となります。
期間中に建築請負契約が成立しなかった場合、土地売買契約は白紙となり、支払った金額は全額返金されます。